Register
Register
Communities
Heron Hills
Cedar Ridge
Millwood Trails
Completed Projects
Design Studio
Buyer’s Guide
News & Media
About Us
Contact
Register
Register
Stay Connected
Communities
Heron Hills
Cedar Ridge
Millwood Trails
Completed Projects
Design Studio
Buyer’s Guide
News & Media
About Us
Contact
Register
Register
Stay Connected
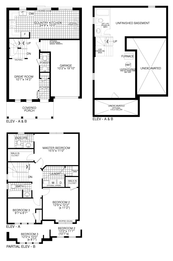
The Danebury
Back to Models
Download PDF
Elevation A
1,458 sq.ft.
Elevation B
1,509 sq.ft.