Register
Register
Communities
Heron Hills
Cedar Ridge
Millwood Trails
Completed Projects
Design Studio
Buyer’s Guide
News & Media
About Us
Contact
Register
Register
Communities
Heron Hills
Cedar Ridge
Millwood Trails
Completed Projects
Design Studio
Buyer’s Guide
News & Media
About Us
Contact
Register
Register
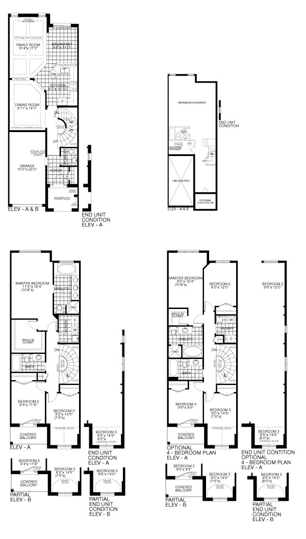
The Woodbine 4
Back to Models
Download PDF
Side A
1,768 sq.ft.
Side B
1,768 sq.ft.