Register
Register
Communities
Heron Hills
Cedar Ridge
Millwood Trails
Completed Projects
Design Studio
Buyer’s Guide
News & Media
About Us
Contact
Register
Register
Stay Connected
Communities
Heron Hills
Cedar Ridge
Millwood Trails
Completed Projects
Design Studio
Buyer’s Guide
News & Media
About Us
Contact
Register
Register
Stay Connected
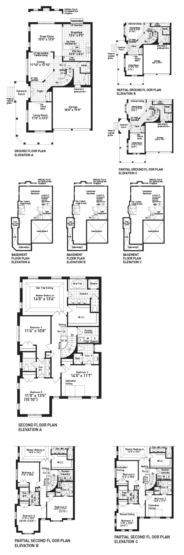
Aspen 7
Back to Models
Download PDF
Elevation A
2,695 sq.ft.
Elevation B
2,728 sq.ft.
Elevation C
2,695 sq.ft.